1070 Ramser DriveWatkinsville, GA 30677




Mortgage Calculator
Monthly Payment (Est.)
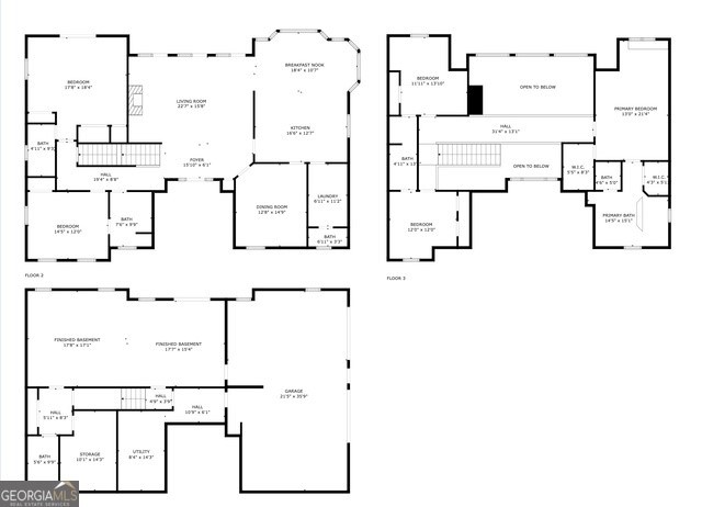
$3,189Overlooking captivating views of the 11th fairway at Jennings Mill Country Club, this 5-bedroom, 5.5-bath home in the top-rated North Oconee school district fills with natural light through generous tall windows. Nearly 3,000 sq ft on the main levels plus 2,105 sq ft in the basement for EVERYTHING you want and need. The oversized garage accommodates larger vehicles and golf carts, with extra room ideal for your ambitions. The large, light-filled eat-in kitchen opens to the living area. Two large main-floor bedrooms feature 9ft ceilings, crown molding and 2.5 baths (one with an en suite bath and sliders to the covered porch connecting to a large deck for enjoying those fairway views). Upstairs, the owner's suite has an expansive bath and built-in bookshelves with a storage/reading bench overlooking the fairway, plus two additional bedrooms with an adorable cottage-feel and varied ceiling pitches that create architectural interest beyond the typical square room. This is a rare opportunity in one of Watkinsville’s most sought-after golf communities. While it invites personal updates to modernize the finishes (typical for homes of this era), the prime location, generous square footage, stunning golf-front setting, and solid bones represent exceptional value—especially beside new construction that closed at $1,179,000 and renovated homes exceeding $1 million in Jennings Mill. Buyers can capture immediate equity by investing in targeted cosmetic refreshes, turning this into a customized gem worth far more in this appreciating neighborhood. With limited inventory for golf-course properties here and values on the rise, homes like this move quickly once the right buyer sees the potential. Envision your own updates and claim this prime spot. Seller is Owner/Agent. Make this your smart entry into Jennings Mill.
| 3 months ago | Price changed to $699,000 | |
| 3 months ago | Listing updated with changes from the MLS® | |
| 4 months ago | Listing first seen on site |
IDX information is provided exclusively for consumers' personal, non-commercial use, and may not be used for any purpose other than to identify prospective properties consumers may be interested in purchasing. The data provided is deemed reliable but is not guaranteed accurate by the MLS.
Did you know? You can invite friends and family to your search. They can join your search, rate and discuss listings with you.