88 Fair Oaks CourtCommerce, GA 30529




Mortgage Calculator
Monthly Payment (Est.)
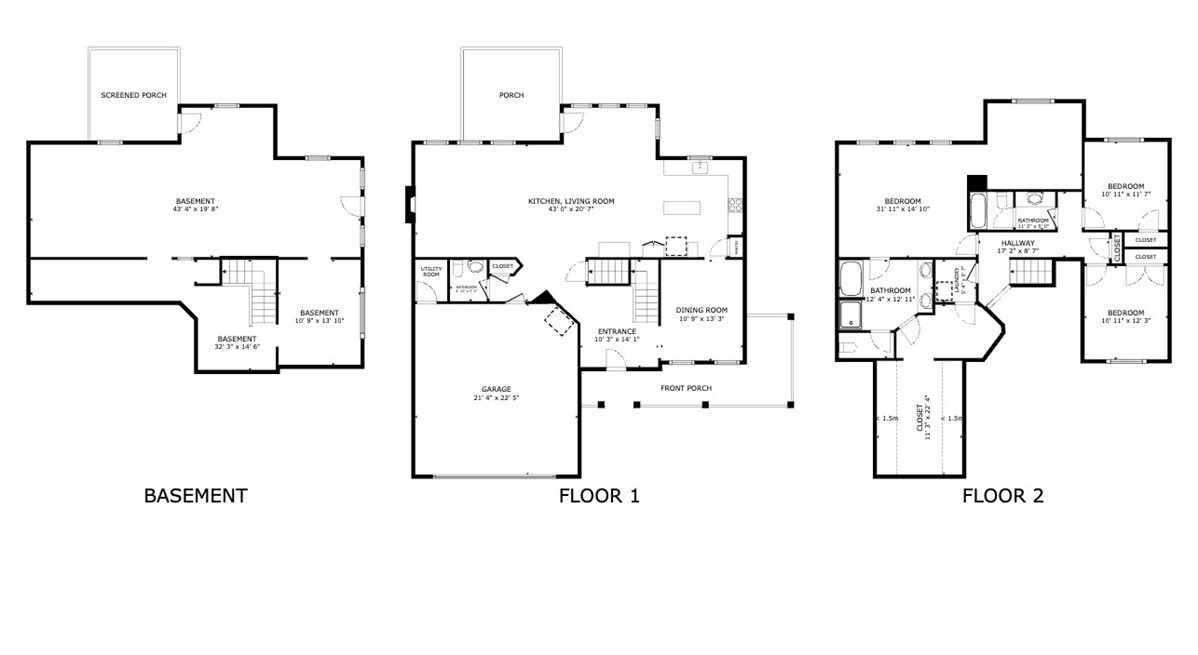
$1,985Hosted in a quiet neighborhood on the East side of Jackson County, sitting on a cul-de-sac street, this basement home is ready to welcome a new owner. DETAILS: *3 Bedrooms/2 Full Baths/1 Half Bath *2243 Finished SqFt. *Year Built - 2019 *0.96 Acre Lot *2-Car attached garage. Unfinished basement that includes a covered screen porch. SPECIAL FEATURES: -New Luxury Vinyl Plank Flooring throughout the main level - New paint throughout the main level -Upgraded Light Fixtures and Ceilings Fans. FLOOR PLAN: Main level features a formal dining room, 2-story foyer, an open living room, kitchen and breakfast area. Upstairs features all 3 bedrooms, 2 full bathrooms and the laundry room. -Through the front entry you'll be greeted by the bright and open foyer. -Well-equipped, the bright kitchen offers granite countertops, stainless appliances and a tile backsplash, as well as ample counter space for meal prep. The kitchen also provides access to the back deck overlooking the private wooded back yard. - Upstairs, each bedroom features ample closet space, plush carpet flooring, ceiling fan light fixtures, multiple windows providing warming natural light, and quick access to a full bath. -A true Owner's Suite is located upstairs and is upgraded with a huge full bathroom, an oversized closet and a private living room that would be a great office or nursery. BASEMENT: Makes for a perfect workshop, hobby area, or just additional storage, complete with Exterior Access. EXTERIOR: ~Covered Front Porch ~2-Car Garage EXTRAS: - Carefree HardiPlank Exterior, -Electric AC -Electric Heat -County Water and septic tank. LOCATION: —Within 1.5 Miles to East Jackson Schools — 15 Miles to Athens —5 Miles to Commerce. You won’t want to miss this super clean, one-owner home that’s conveniently located close to Schools, Athens, Commerce, and I-85. Don't miss the Matterport 3D Tour on Homes.
| 2 months ago | Listing first seen on site | |
| 2 months ago | Listing updated with changes from the MLS® |
IDX information is provided exclusively for consumers' personal, non-commercial use, and may not be used for any purpose other than to identify prospective properties consumers may be interested in purchasing. The data provided is deemed reliable but is not guaranteed accurate by the MLS.
Did you know? You can invite friends and family to your search. They can join your search, rate and discuss listings with you.