2577 Blazing Star CTStatham, GA 30666


Mortgage Calculator
Monthly Payment (Est.)
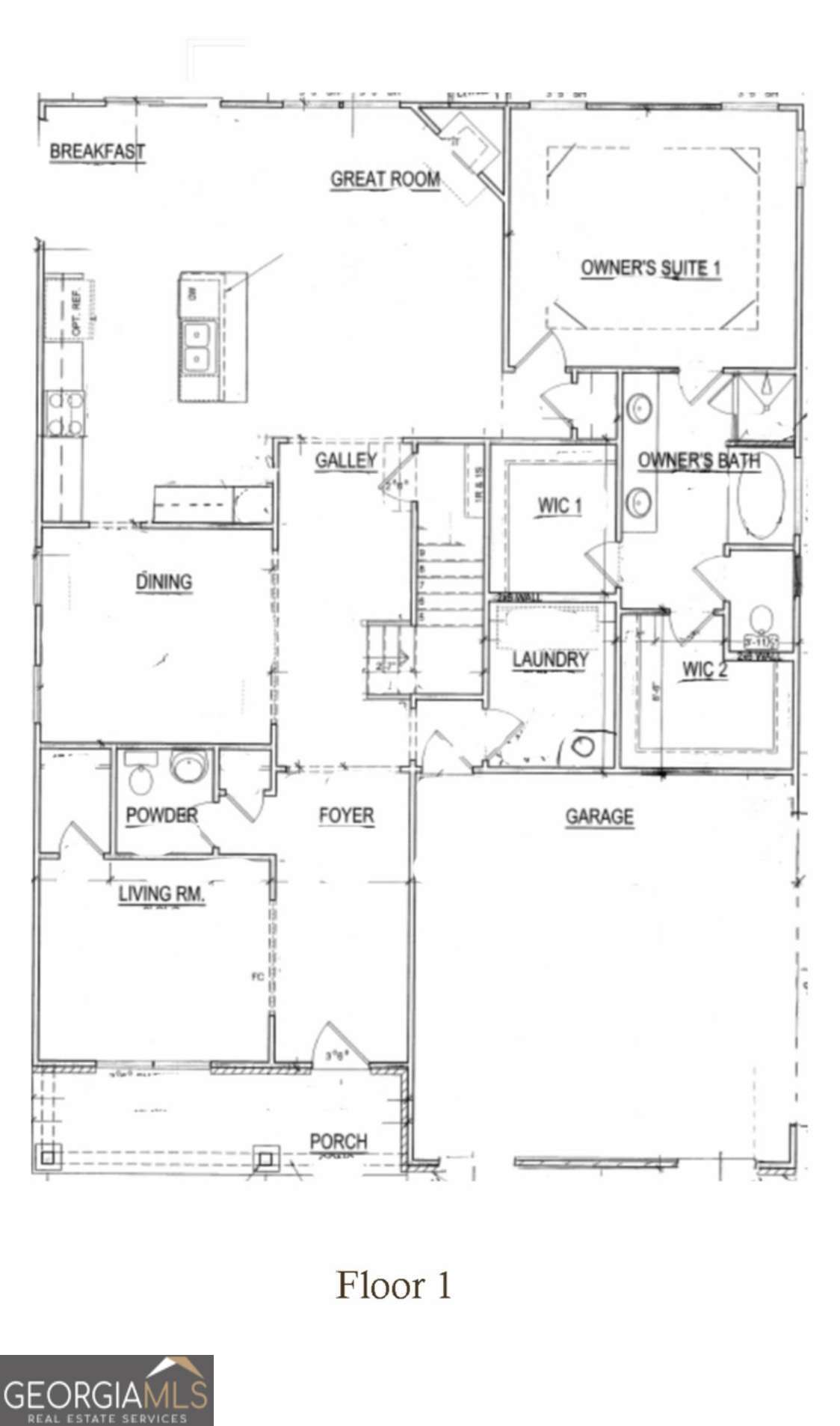
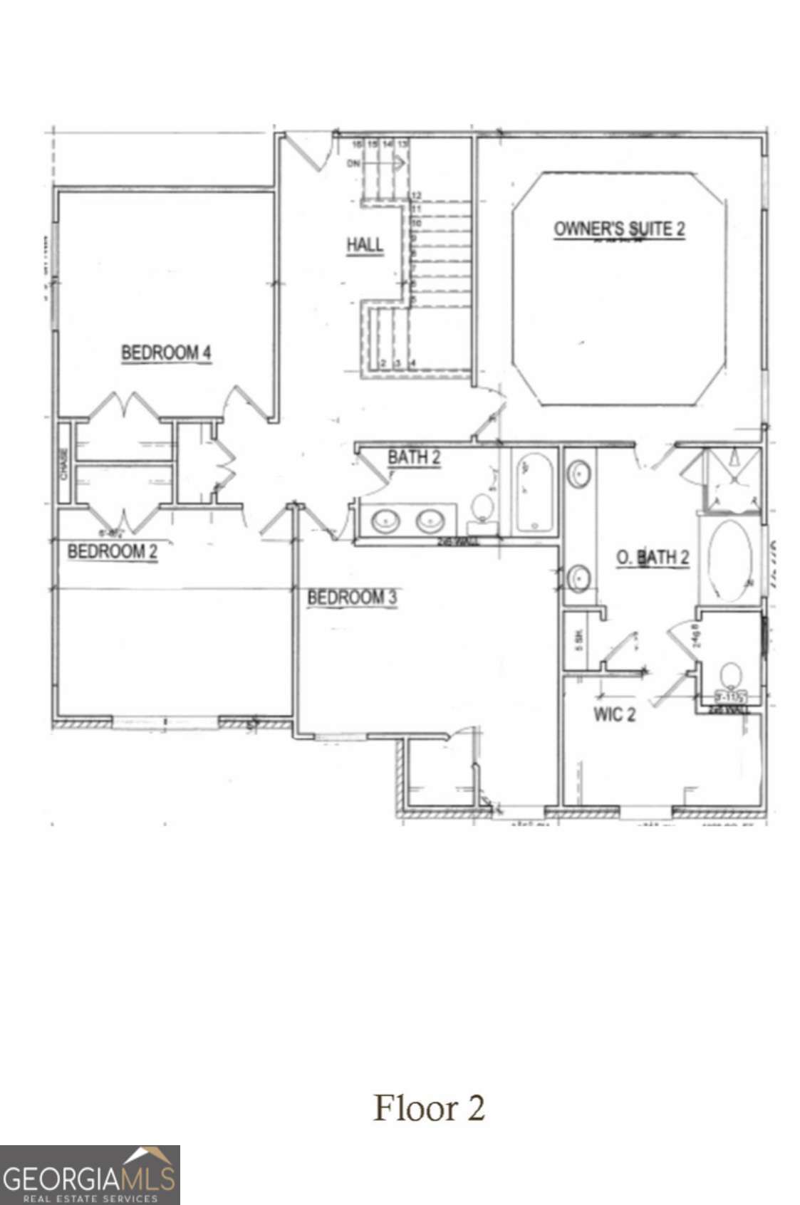
$3,786Situated on a generous 1.133-acre homesite, this modified Savannah plan offers 5 bedrooms, 3.5 baths, and approximately 3,223 square feet of thoughtfully designed living space, complete with a full, unfinished basement ready for future expansion. The exterior showcases classic brick construction with fiber cement accents, architectural shingles, vinyl windows, five-inch seamless gutters, and a professionally landscaped, fully sodded, and irrigated yard. A three-car garage with carriage-style doors. Inside, engineered hardwood floors extend throughout the foyer, living room, dining room, great room, breakfast area, and kitchen, complemented by solid oak stair treads. Bedrooms and closets are comfortably carpeted, while tile flooring is featured in all baths and the laundry room. Two owner's suite offers a spa-inspired bath with a tiled shower and frameless glass door, a separate freestanding soaking tub, and granite countertops. Secondary bathrooms include one-piece fiberglass tub/shower combinations with tile surrounds. Custom cabinetry and granite countertops are featured throughout the home. The kitchen is equipped with stainless steel appliances, including a French door counter-depth refrigerator, dishwasher, cooktop, single wall oven, built-in microwave, and concealed vent hood. Additional interior highlights include a brick-surround fireplace, ceiling fans in all bedrooms and the great room, and 2" faux wood blinds. Modern efficiency and convenience are provided by Carrier high-efficiency HVAC systems, a smart security system, smart thermostat, and video doorbell. Outdoor living is complete with an open deck overlooking the expansive homesite-ideal for entertaining or relaxing.
| 3 hours ago | Listing first seen on site | |
| 3 hours ago | Listing updated with changes from the MLS® |
Information deemed reliable but not guaranteed. The data relating to real estate for sale on this web site comes in part from the Broker Reciprocity Program of Georgia MLS. Real estate listings held by brokerage firms other than this office are marked with the Broker Reciprocity logo and detailed information about them includes the name of the listing brokers. Copyright © 2020-present Georgia MLS. All rights reserved.
Last checked: 2026-03-03 09:02 PM UTC
Did you know? You can invite friends and family to your search. They can join your search, rate and discuss listings with you.